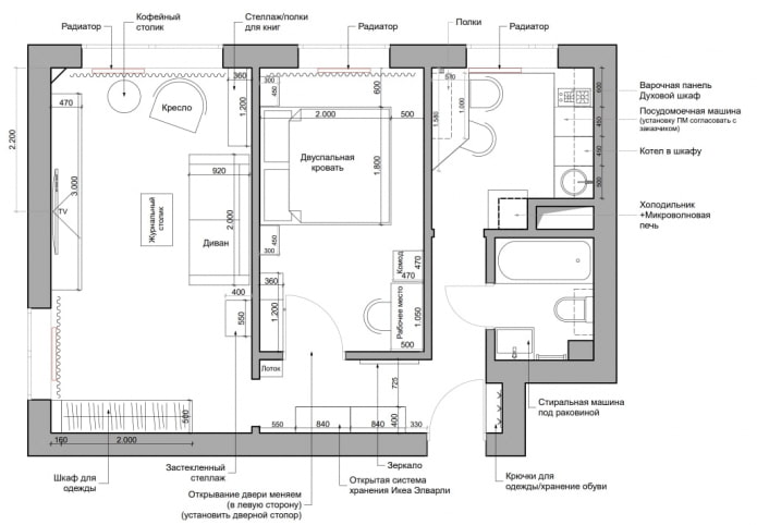
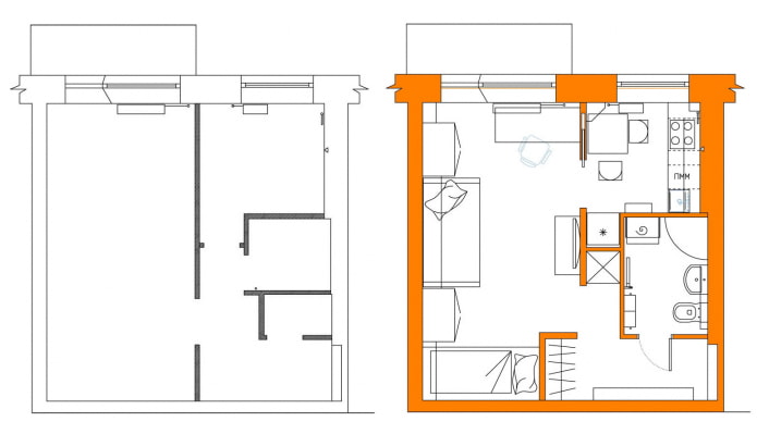
Функциональная однушка в нежных тонах

Площадь квартиры – 28 кв.м., дизайнер Эльжбета Чегарова. Маленькая хрущёвка предназначена для пожилой семейной пары. Чтобы сделать кухню более просторной, её объединили с гостиной , разграничив перегородкой.

Планировка

Бесполезный коридор превратили в нишу для холодильника и встроенный шкаф, возведя стену. Жилое помещение превратилось в спальню-гостиную, где нашлось место для двух диванов, кабинета, тв-зоны и системы хранения .

Туалет и ванную объединили , благодаря чему в санузле уместилась душевая кабинка, стиральная машина и шкафчик.

Читайте подробнее про дизайн интерьера этой 1-к квартиры в хрущевке .

Интерьер двухкомнатная хрущевки с кухней 5 кв.м

Площадь квартиры 40 кв.м ., владельцы – молодая пара. Бюджет – 800 т.р . Дизайнер Марина Меренкова не меняла планировку, а обустроила маленькую кухню так, что для всего необходимого хватило места. Её главная особенность – столешница гарнитура, переходящая в подоконник , а затем – в обеденный стол.

Планировка

Гостиная разделена на несколько зон :

  • есть уголок для чтения с мини-библиотекой,
  • место для отдыха и просмотра телевизора,
  • шкаф-купе для одежды и габаритных вещей.

Гостиная

Интерьер спальни выдержан в глубоких синих тонах и включает в себя не только место для сна, но и мини-кабинет, а также компактную систему хранения.

Спальня

Коммуникации в санузле пришлось перенести, чтобы уместить стиральную машинку под раковиной , сантехнический шкафчик и полноценную ванну.

Посмотрите полное описание проекта и другие фото в интерьере .

Из однушки – в евродвушку

Квартира занимает всего 34 кв.м, но по функционалу не уступает полноценной двухкомнатной квартире. Владелица этой хрущевки – молодая девушка-маркетолог.

Дизайнеры Buro Brainstorm объединили кухню и часть комнаты, чтобы обустроить удобное место для готовки и просторную столовую, отделив их перегородкой.

Планировка

Телевизор, перегородка, гостиная

В спальне с выходом на балкон поставили полноразмерную кровать и встроили вместительный шкаф-купе , с помощью которого удалось вписать балку ригеля.

Оформив санузел , дизайнеры добились почти невозможного, уместив столешницу с накладной раковиной и стиральной машинкой, унитаз и ванную. Пространство расширяет навесной шкаф с зеркальными дверцами.

Новая квартира из "убитой" двушки

Площадь – 43 кв. м. Дизайнер Анастасия Калистова убрала в квартире все перегородки, заново сформировав пространство. Получилось светлое, современное жильё для молодых людей. Бывшую кладовку преобразовали в гардеробную , а кухню сделали просторней благодаря объединению с гостиной.

Планировка

В комнате обустроили столовую и тв-зону с местом для отдыха. Особенность интерьера – акцентная стена , выкрашенная в бирюзовый оттенок. Белый встроенный гарнитур и тумба под телевизор.

Спальня выдержана в спокойной цветовой гамме, не имеет лишней мебели и декора. Её главное украшение – молдинги на стенах , придающие интерьеру элегантности.

Площадь санузла увеличили за счёт коридора. Интерьер продуман до мелочей : в ванной комнате задействован каждый сантиметр.

Трёхкомнатная хрущёвка с собственным дизайном

Площадь квартиры – 53 кв.м. Молодая семейная пара с ребёнком сумели создать функциональный и стильный интерьер, не обращаясь к дизайнеру, но принимая помощь от различных специалистов во время ремонта.

Маленькую кухню совместили с одной из комнат, получив роскошную столовую, а за счёт коридора обустроили гостевой санузел и гардеробную.

Планировка

Спальня занимает всего 10 кв.м , но чтобы добавить света и простора, владельцы хрущевки расширили окно и остеклили балконную дверь. Также в комнате поместился небольшой шкаф для вещей.

Детская в тёплых тонах включает в себя несколько функциональных зон : спальную, игровую, учебную и для отдыха (раскладное кресло превращается в кровать). В коридоре установлены напольные тумбы и шкафчики для хранения.

В основном санузле есть всё необходимое: ванна, раковина, стиральная машина, бойлер и унитаз. В гостевом туалете также установлена навесная раковина. На открытом балконе оформлено место для чаепитий.

Санузел

Евротрёшка с просторной кухней-гостиной

В квартире площадью 54 кв.м. живёт молодая семейная пара и ребёнок. Дизайнеры Buro Brainstorm преобразовали старую хрущёвку, убрав перегородку между кухней и комнатой, и отведя спальне и детской по 9 кв м. Ознакомьтесь с планировкой квартиры ниже:

Планировка

Кухонную мойку перенесли к окну , духовку подняли на 120 см, а холодильник встроили в шкаф . Обеденную зону выделили паркетом, сформировав уютную столовую из диванчика, стола и стульев.

Кухня-гостиная

Небольшая спальня не выглядит тесной, поскольку стены почти свободны, а оконный проём расширен. Из мебели только кровать и шкаф, а подоконник служит уголком для чтения . Такой интерьер выглядит стильно и не перегружает маленькое пространство.

Спальня, шкаф, зеркало

Светлая детская комната включает в себя кровать-домик , раскладное кресло, комод и стол для занятий. Шкаф углублён в нишу. Благодаря нейтральной цветовой гамме обстановку можно легко менять по мере взросления мальчика.

Главная особенность ванной – двойная раковина для обоих родителей и ребёнка. Стиральная машина находится над уровнем пола и спрятана за перегородкой. Также в квартире предусмотрен гостевой санузел и гардеробная в конце коридора.

Коридор

Ремонт старой двушки за два месяца

Площадь хрущёвки 45 кв.м., владельцы – молодая пара с котом. Автор проекта Евгения Матвеенко из бюро FlatsDesign расширила кухню за счёт объединения с комнатой, обустроила гардеробную и увеличила санузел. Бюджет составил 1 миллион рублей .

Планировка

Чтобы сделать ремонт быстрее, пол выровняли сухим методом, а перегородки построили из гипсокартона . В качестве разделителя между кухонной и жилой зоной выступает барная стойка . Холодильник спрятан в нише.

Одну из стен комнаты занимает зеркальный шкаф-купе, зрительно увеличивающий пространство.

Зеркальный шкаф

В спальне установлена кровать-подиум с выдвижными ящиками. Вторую половину комнаты занимает гардеробная – так дизайнер расширила бывшую кладовую.

Спальня

Санузел увеличили за счёт коридора. Внутри расположили полноценную ванну, унитаз и лаконичные напольные тумбы для раковины и стиральной машины.

Облик квартиры, её уют и функциональность не всегда зависят от её площади и высоты потолков. Даже хрущевку можно преобразить, тем самым украсив свою жизнь и сделав быт более простым и приятным.